
Nestled in the heart of the Australian Capital Territory, the Torrens project represents a seamless fusion of sustainability and mid-century inspired design.
The vision of creating an urban home that connects and blends holistically with its surroundings has been achieved via a balance of modular functionality, style, and sustainable living.
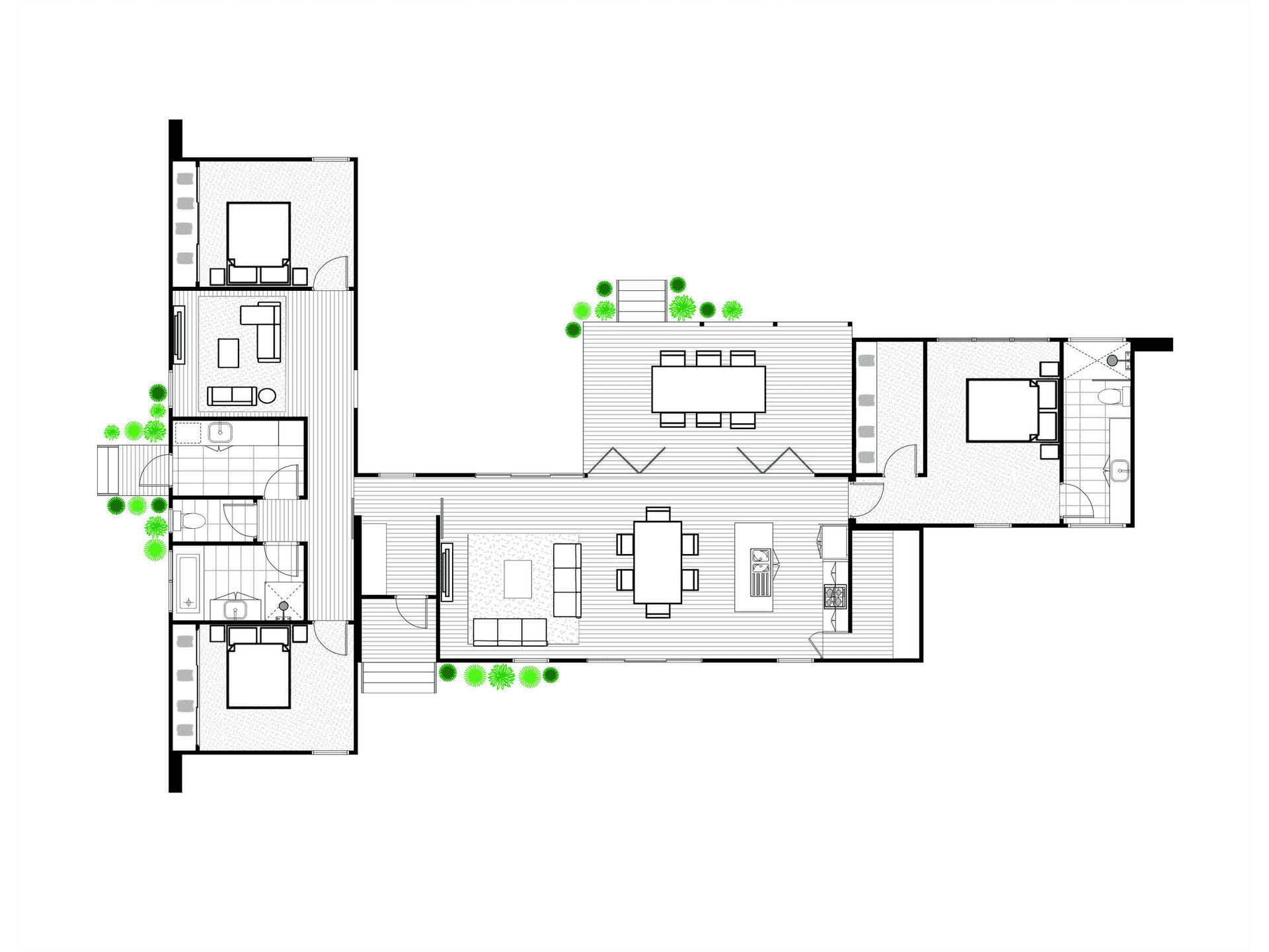
While integrating a compact floor plan fit for contemporary living and the evolving needs of a young family, the home serves as a sanctuary for its owners and reflects the dynamism of daily family life. Internal spaces embrace a sense of openness enhanced with mid-century modern touches throughout.
| Modules | 3 |
| Living area | 147m2 |
| Deck | 24m2 |
| From | $610,000 + GST |
Enter your details to receive the Ecoliv brochure including our complete range, process, and sustainability guide.
