Open Mon-Fri 9am-5pm
1114 Bass Hwy, The Gurdies VIC 3984
Phone +61 (03) 5672 5196
Email info@ecoliv.com.au
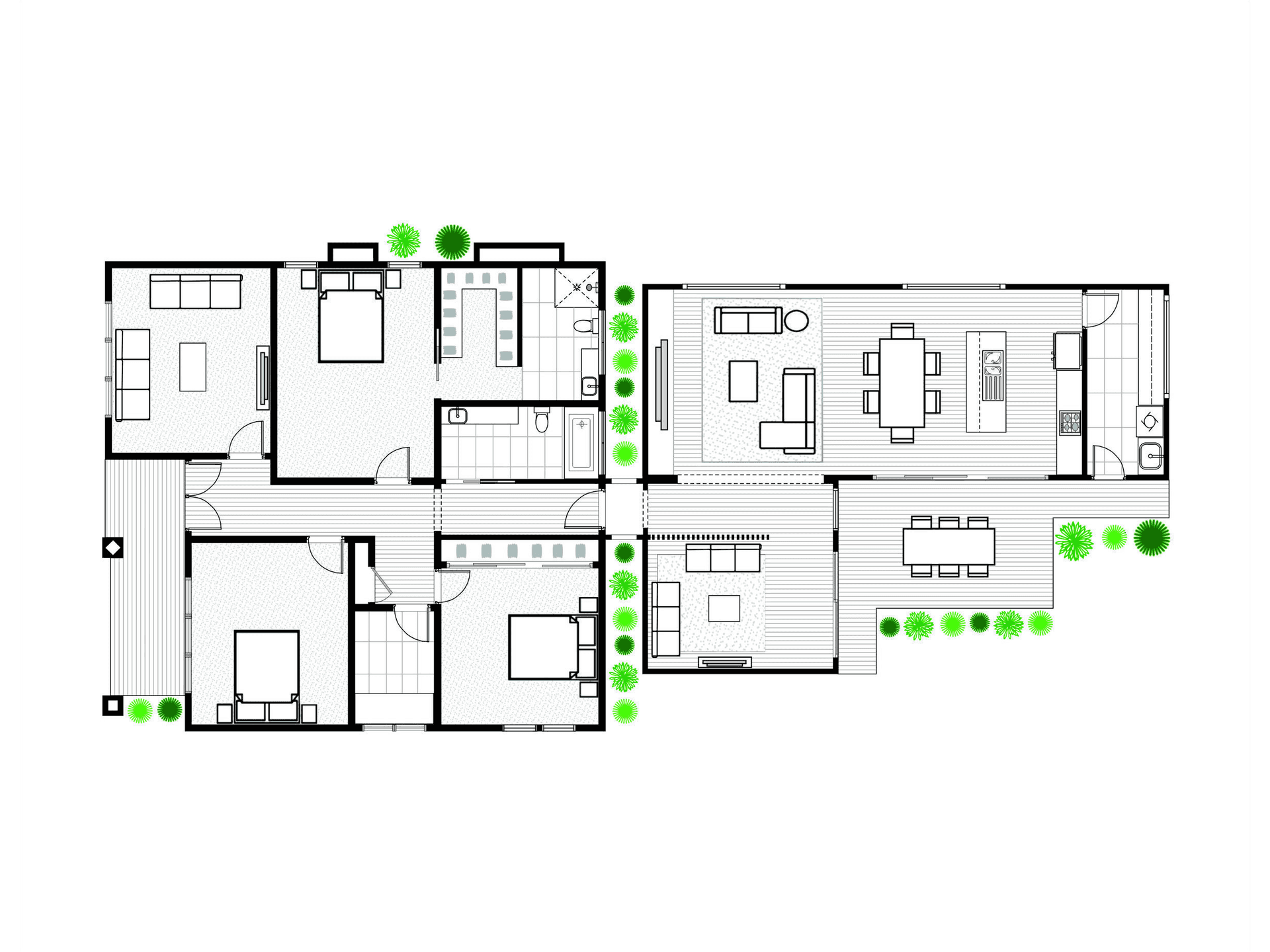
The Yarraville Project features an innovative extension comprised of two crane-lifted modules, significantly expanding the living area of an existing inner-suburban home. This addition includes a spacious kitchen and living zone, a versatile multipurpose area, and a modern bathroom, creating a seamless blend of functionality and style that enhances the home’s overall appeal.
| Modules | 2 |
| Living Area | 77 m² |
| Deck Area | 17 m² |
| Price | POA |
