Open Mon-Fri 9am-5pm
1114 Bass Hwy, The Gurdies VIC 3984
Phone +61 (03) 5672 5196
Email info@ecoliv.com.au
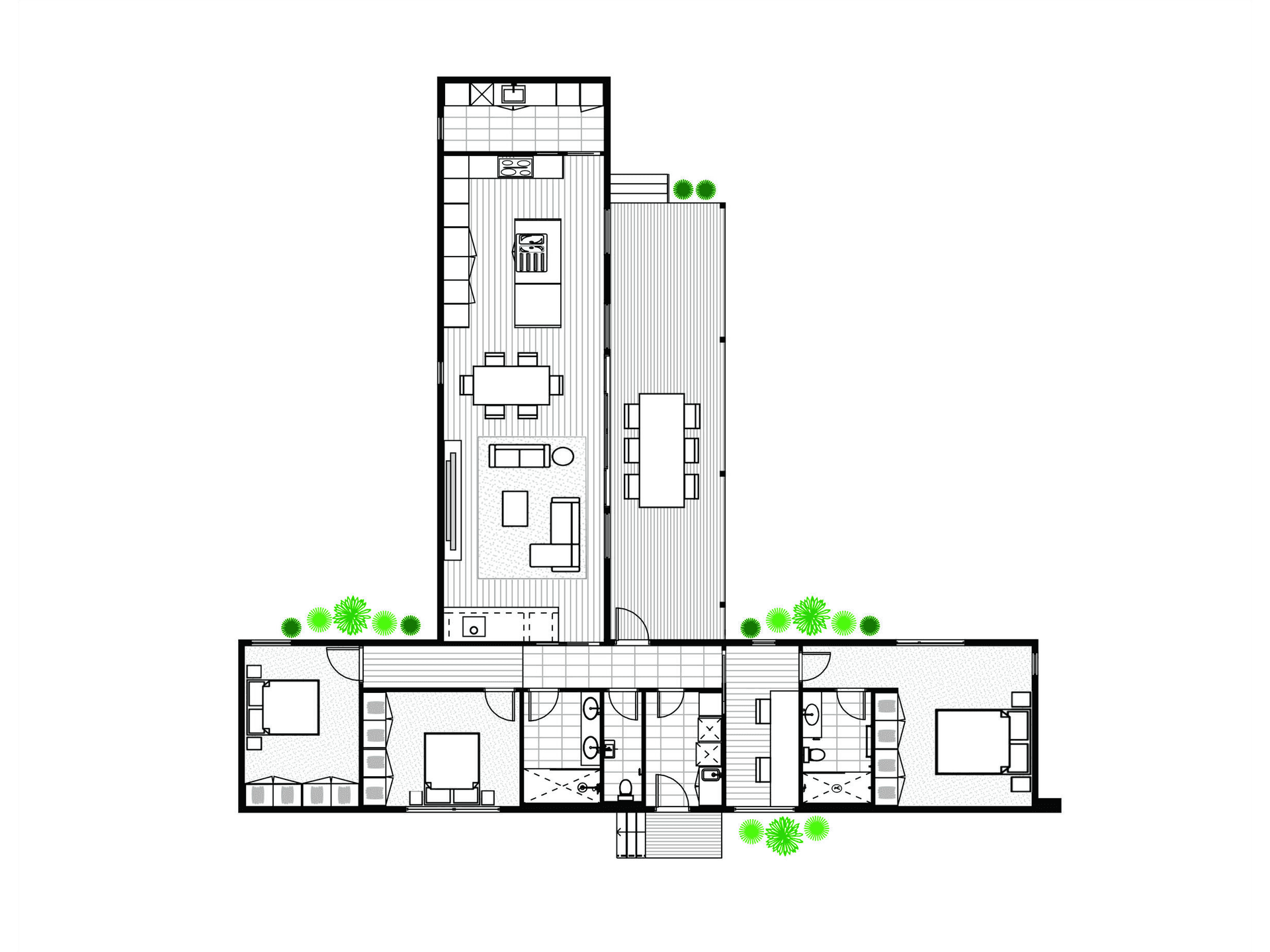
This evolving coastal project is nestled in the quiet beachside community of Coronet Bay. The home features a modest one-bedroom layout with bunk space, kitchen, laundry, bathroom, and a side entertaining deck designed as a simple weekend escape.
After relocating permanently and outgrowing the space, the clients returned to Ecoliv to build their second home on the same site.
To make way for the larger family home, the original custom design will now become a secondary dwelling, supporting flexible living arrangements.
| Modules | 1 |
| Living Area | 77 m² |
| Deck Area | 23 m² |
| Price | From $429,000 + GST |
