South Golden Beach Project

Midjumbil / Durumbil - Bundjalung

South Golden Beach Project

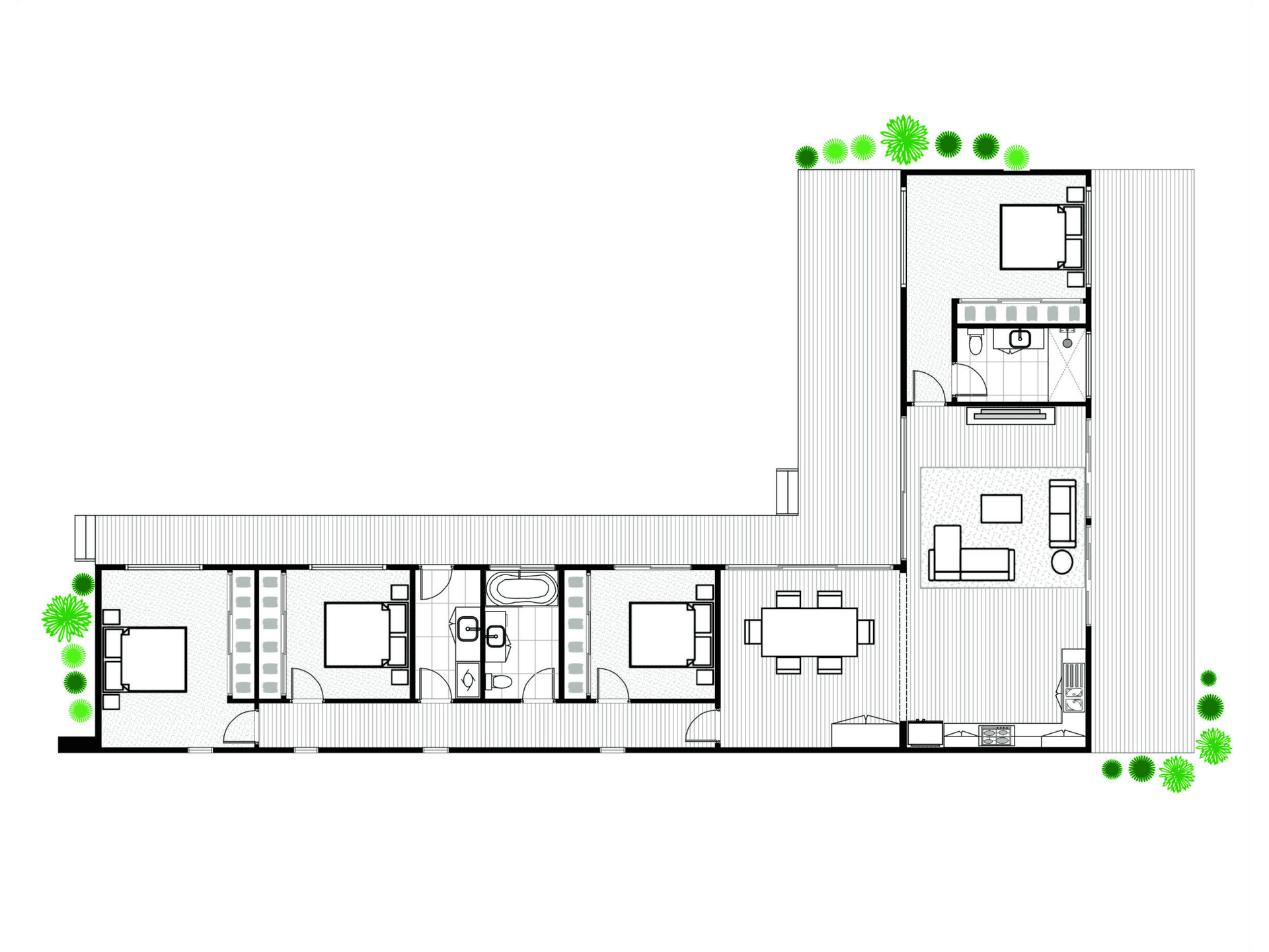
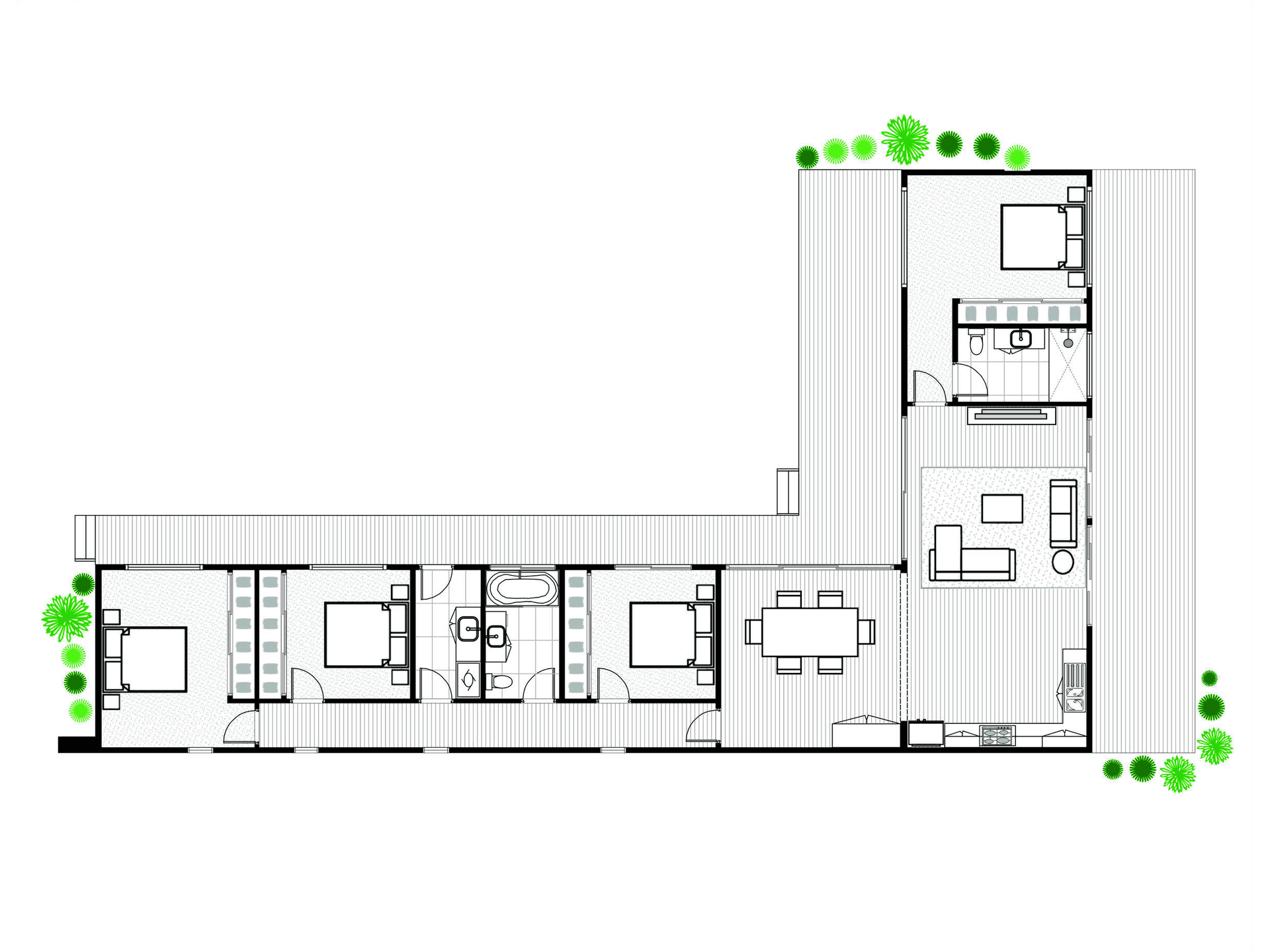
Adopting passive solar principles and maximising the site orientation the home nestles beautifully into its natural setting. Two sustainably built modules envelope four bedrooms, two bathrooms and two open living zones.

The beach home occupies a minimal footprint, but still offers maximum flexibility for a young family to enjoy a relaxing coastal escape.