
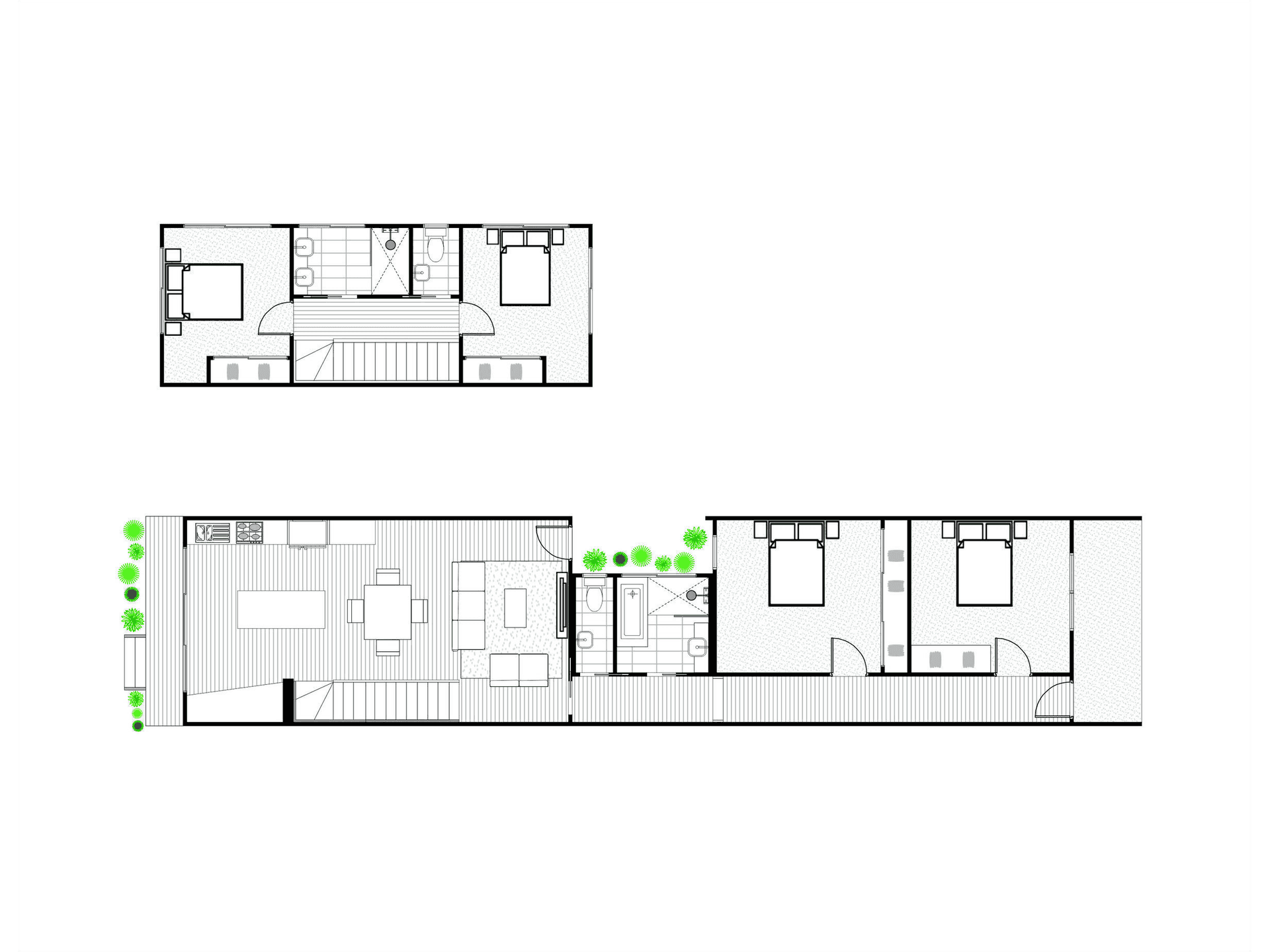
The Richmond Project successfully transformed a quintessential single-storey inner-city terrace home into a modern, double-storey family residence.
Despite the limited access to the site, typical of inner-city locations, the project achieved its goal of creating a contemporary living space downstairs, combining living, dining, and kitchen functions. Additionally, the renovation added bedrooms and a shared bathroom upstairs. By incorporating modern amenities and design elements, the project enhanced the overall functionality and comfort of the home, making it a valuable addition to the inner-city neighbourhood.
| Modules | 2 |
| Living area | 97m2 |
| Deck | m2 |
| From | POA |
Enter your details to receive the Ecoliv brochure including our complete range, process, and sustainability guide.
