Open Mon-Fri 9am-5pm
1114 Bass Hwy, The Gurdies VIC 3984
Phone +61 (03) 5672 5196
Email info@ecoliv.com.au
The brief for the Northcote project was to create a place for connection and place to make memories. The home needed to adapt with the needs of a young family over time whilst minimising environmental impact and maximising the potential of an inner suburban site situated adjacent to a trainline.
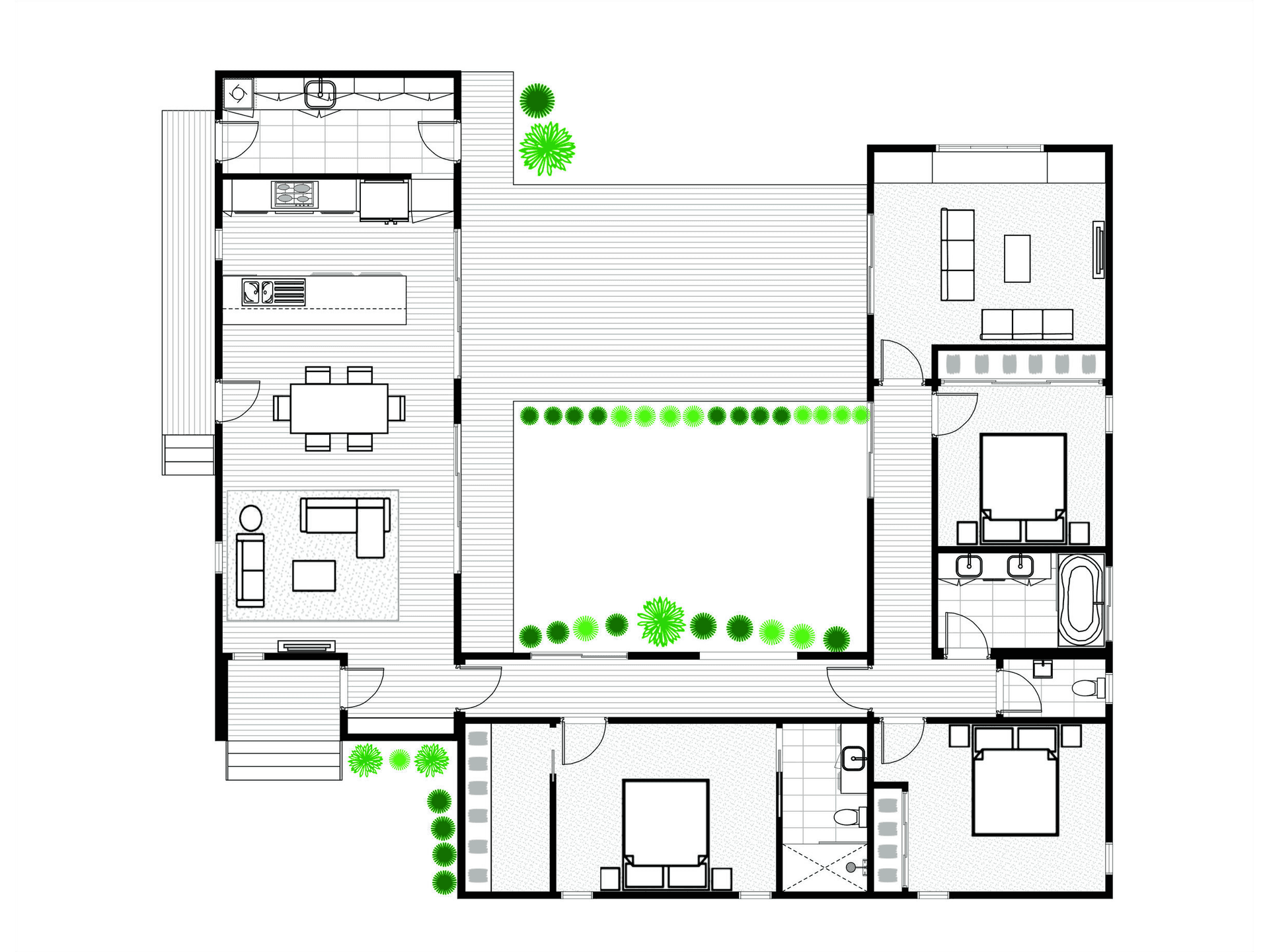
The resulting design is a free flowing urban sanctuary that connects with and enhances the site via biophilic design principals. The structure brings together three modules to create a “u” shape footprint which encourages visual and physical connection to a central courtyard and productive gardens.
Passive solar 7 star design principals, offsite modular construction and sustainable materials integrated with operational efficiencies such as solar power and hot water and rainwater harvesting, minimise the overall environmental impact of the home.
The unassuming facade evokes curiosity. However once inside, the home shines with distinctive family character and environmental connectivity.
| Modules | 3 |
| Living Area | 152 m² |
| Deck Area | 42 m² |
| Price | From $610,000 + GST |
