Open Mon-Fri 9am-5pm
1114 Bass Hwy, The Gurdies VIC 3984
Phone +61 (03) 5672 5196
Email info@ecoliv.com.au
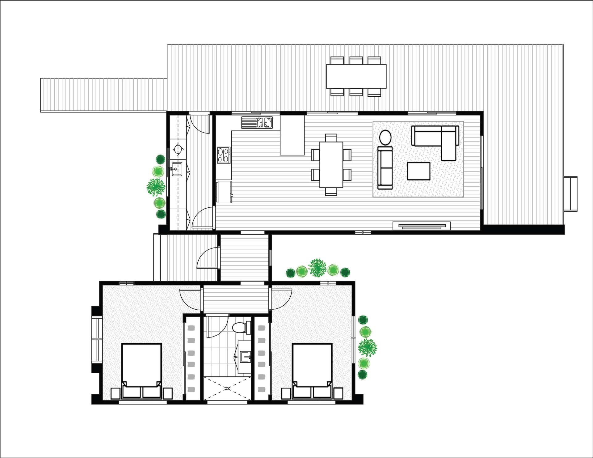
The Mallacoota Project is a deeply heartfelt undertaking to rebuild a family holiday home that was impacted by devastating bushfires in 2019. The project's primary objective was to create a haven for future generations to enjoy, while seamlessly integrating with the beautiful natural coastal reserve surrounding the Croajingolong National Park.
Adding to the emotional weight of the project, the owner, who was nearing the end of her life, expressed a strong desire to witness the home's resurrection and spend precious time within its walls once again. This poignant motivation instilled a sense of urgency, emphasising the need for a swift and efficient rebuild which was realised through prefabricated modular construction methods.
To achieve this vision, the home was designed to harmonise with its environment and prioritise sustainability and resilience. Constructed to BAL 29 rating, the exterior features Silvertop Ash Shiplap cladding in both natural and charred finishes – a respectful ode to the site and its story.
The Mallacoota Project serves as an inspiring example of how to rebuild and create a sanctuary in harmony with nature. By prioritising sustainability, resilience and site respectful design, this project not only provides a cherished family holiday home but also contributes to the preservation and appreciation of the surrounding natural beauty for generations to come.
| Modules | 2 |
| Living Area | 99 m² |
| Deck Area | 37 m² |
| Price | From $480,000 + GST |
