Open Mon-Fri 9am-5pm
1114 Bass Hwy, The Gurdies VIC 3984
Phone +61 (03) 5672 5196
Email info@ecoliv.com.au
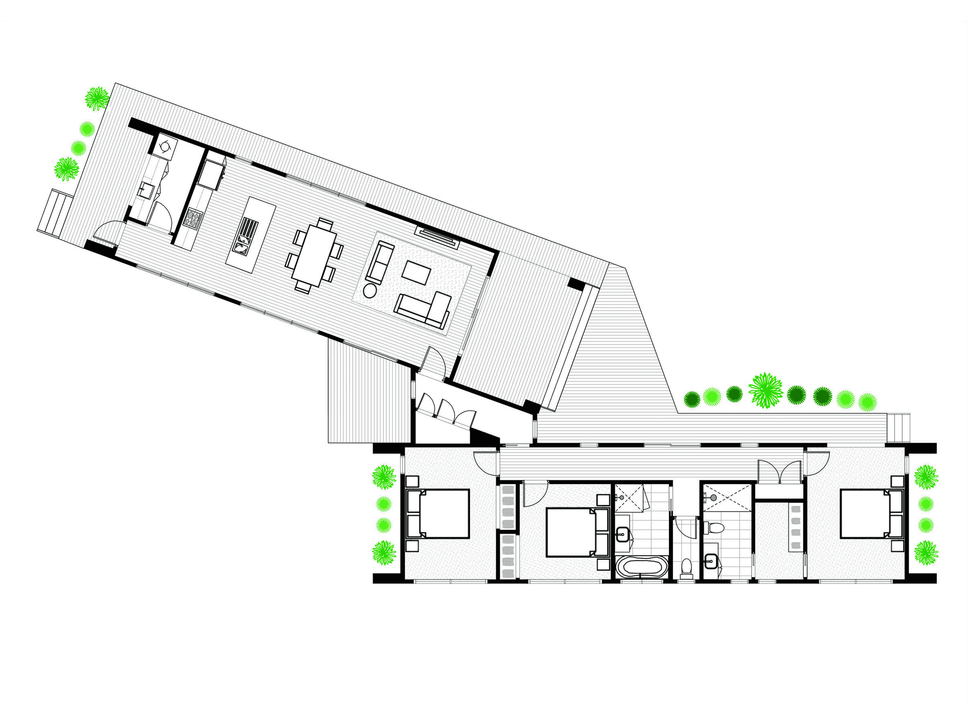
The Kilcunda project was designed to maximise northern orientation whilst showcasing views of the ocean to the south on a sloping exposed coastal site. Prevailing winds and the need for protected outdoor entertaining areas dictated that two linear modules were positioned in a dual level angled floor-plan with a connecting link between living and sleeping zones.
The minimalist barn-like exterior is robust and striking against the minimally vegetated landscape whilst interior spaces imbue a warm light filled radiance reflective of the home's beachside location.
| Modules | 2 |
| Living Area | 135.72 m² |
| Deck Area | 69.21 m² |
| Price | From $595,000 + GST |
