Open Mon-Fri 9am-5pm
1114 Bass Hwy, The Gurdies VIC 3984
Phone +61 (03) 5672 5196
Email info@ecoliv.com.au
Nestled in the heart of Mornington Peninsula's enchanting fishing village, our Flinders project epitomises coastal charm and sustainable living. As retirees our clients chose this location for their new home, aiming to leave a sustainable legacy that harmonises with the environment.
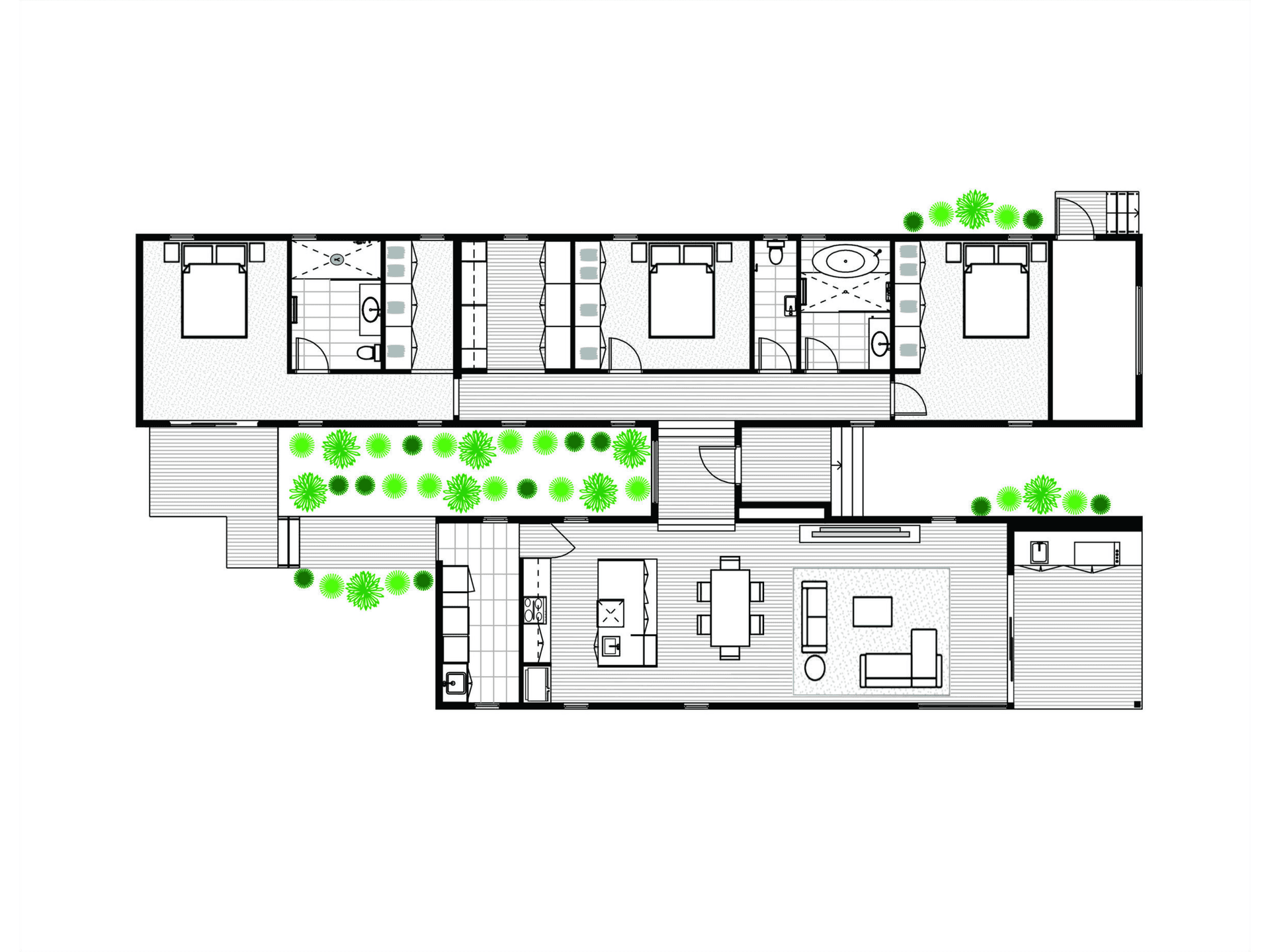
Designed to seamlessly integrate with its surroundings, the home works with the land's contours providing functionality, climate responsiveness, and remarkable energy efficiency. Separate living and sleeping zones are connected via the grand entrance featuring views of the landscape and courtyard beyond.
Prioritising sustainability, natural materials and site-respectful design, the home is a sanctuary that cherishes and safeguards the natural allure of the coastal landscape.
| Modules | 3 |
| Living Area | 170 m² |
| Deck Area | 31 m² |
| Price | From $740,000 + GST |
