Open Mon-Fri 9am-5pm
1114 Bass Hwy, The Gurdies VIC 3984
Phone +61 (03) 5672 5196
Email info@ecoliv.com.au
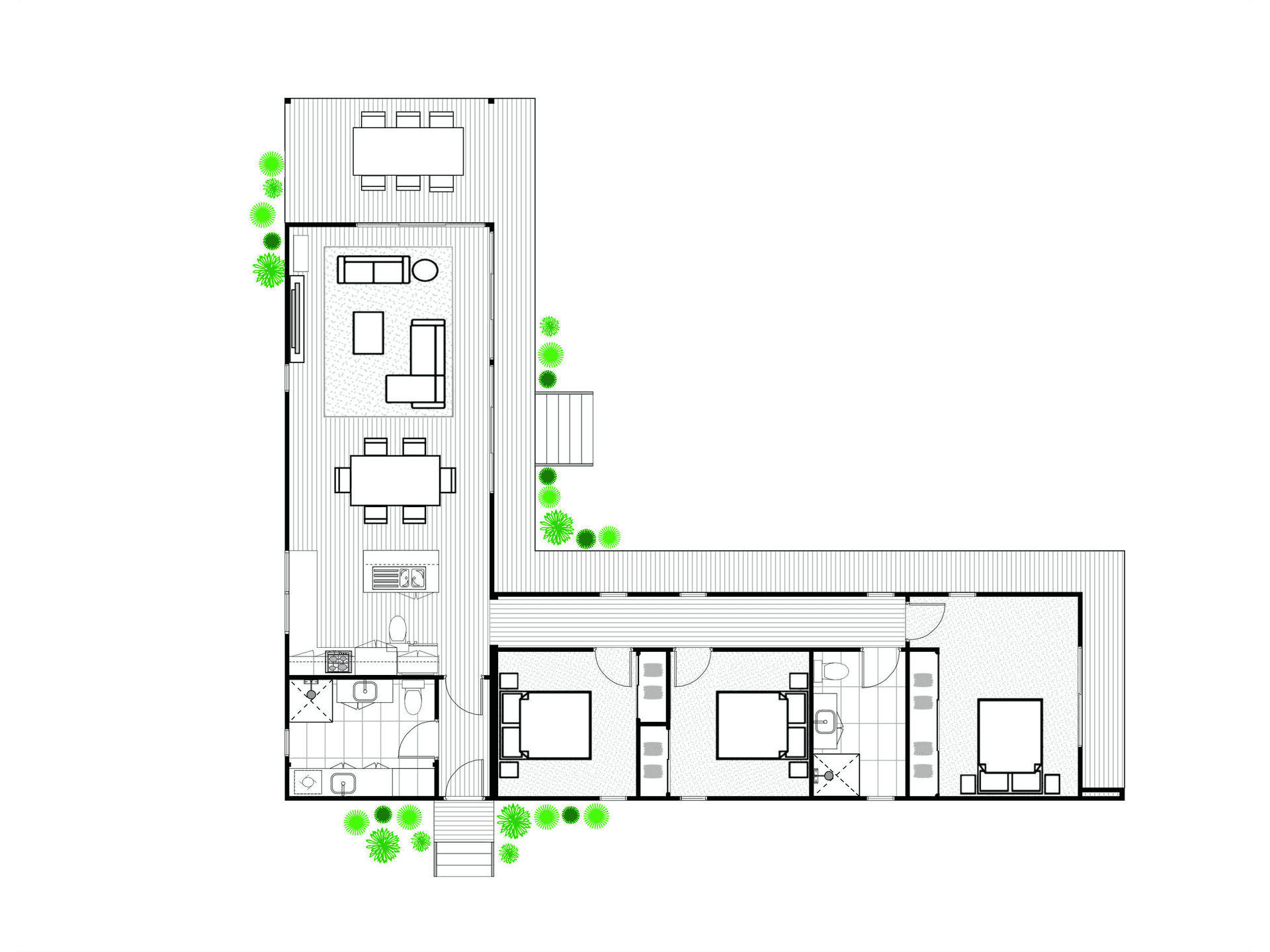
Set on Phillip Island, this low-maintenance holiday home is designed to feel like an effortless escape—where the pace slows down the moment you arrive. Its earthy façade mirrors the natural tones of the countryside, blending beautifully into the eucalypt landscape.
Carefully oriented for year-round thermal comfort, the home welcomes warming winter sun while staying cool and comfortable through summer—so you can relax in every season. Expansive glazing frames breathtaking rural views, drawing the outdoors in and creating a constant connection to the sweeping green hills beyond.
With an off-grid solar power system and an environmentally friendly wastewater system, it offers the freedom of lighter living—reducing ongoing costs while minimising impact on the environment.
| Modules | 2 |
| Living Area | 113.58 m² |
| Deck Area | 37.24 m² |
| Price | From $485,000 + GST |
