Open Mon-Fri 9am-5pm
1114 Bass Hwy, The Gurdies VIC 3984
Phone +61 (03) 5672 5196
Email info@ecoliv.com.au
Situated on the banks of the Mowamba River in the Snowy Mountains NSW, the Jindabyne site is set in a secluded valley on 120 acres of bushland. The brief for this project focussed around creating a warm and inviting modern home with a nod to alpine architecture to reflect the location.
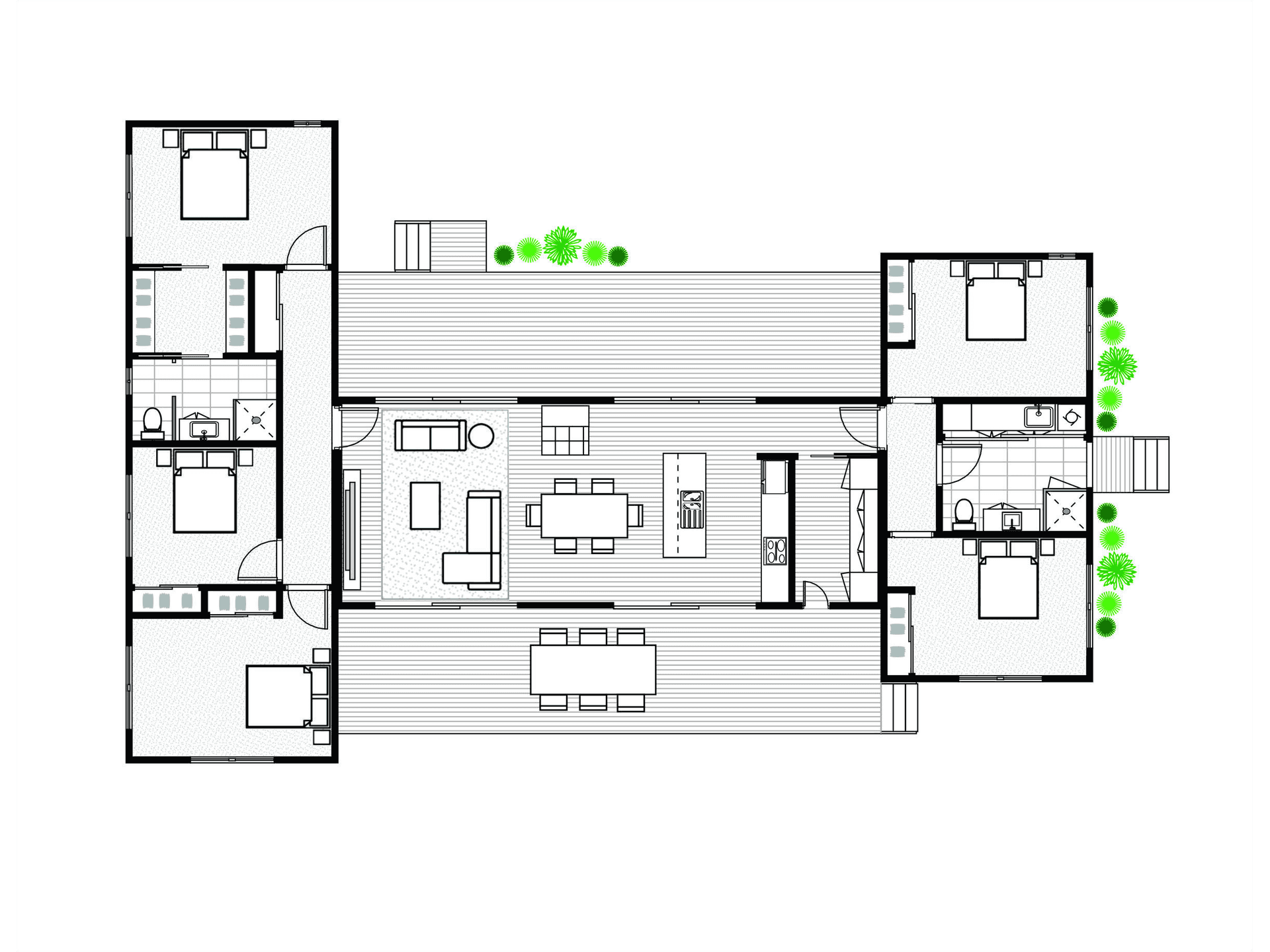
Sited with stunning southern views, the design settles into the contours of the land, creating a sheltered northern courtyard. Carefully placed windows provide abundant balanced natural daylight. They are fine tuned for spectacular views and passive solar tempering. A spacious and efficient layout encourages family activity with flexible areas that can be zoned to facilitate temperature control. Resilient design features are integral to the design for long term structure life and ease of long term adaptations.
The house is autonomous on the site, producing its own power with a PV solar array, capturing rainwater, and treating and disposing of wastewater with an on-site gravity fed system. Going off-grid and using natural resources like the sun or wind to power your home is one of the modern ways to rebel against the system, and this project demonstrates that you don't need to sacrifice comfort or style in order to do so.
| Modules | 3 |
| Living Area | 156.36 m² |
| Deck Area | 62.88 m² |
| Price | From $630,000 + GST |
