
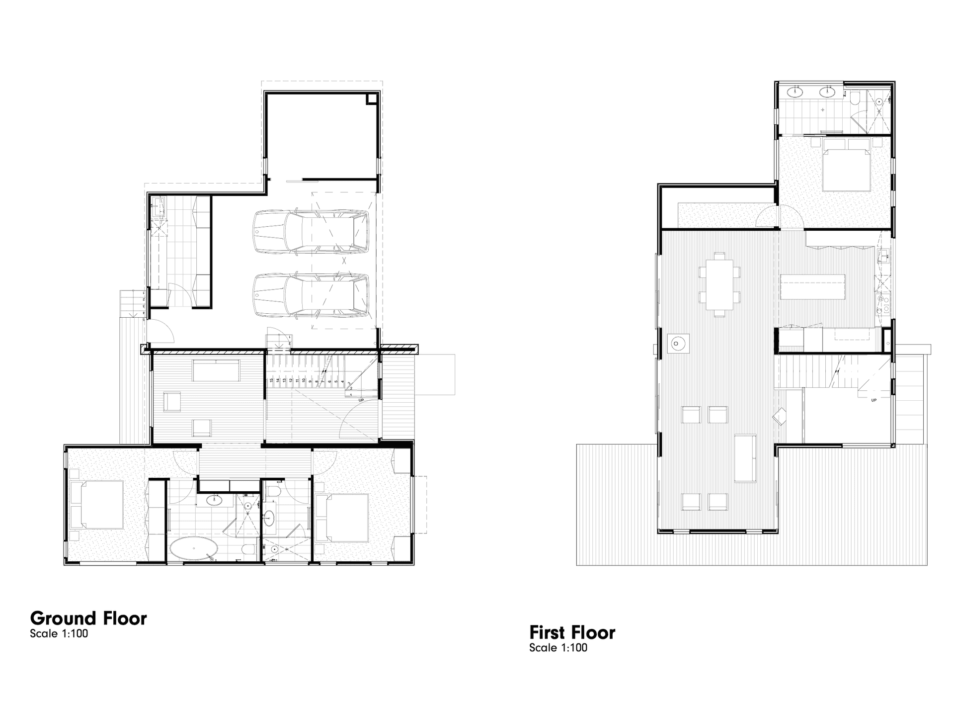
Seaview is a bespoke two-storey coastal retreat designed to embrace light, space, and the beauty of its natural surroundings. Thoughtfully created in four prefabricated modules and placed atop a double garage built onsite, the home reflects the efficiency and precision of modular construction while respecting and complimenting the landscape.
A striking recycled brick spine wall grounds the entry and staircase, while the elevated living area opens to sweeping ocean views and a spacious balcony – the perfect backdrop for relaxed coastal living and entertaining.
Inside, every detail has been considered to enrich everyday life. A chef’s kitchen forms the welcoming heart of the home, complemented by indulgent bathrooms and refined finishes that elevate comfort and style. Clad in sustainable timber to blend seamlessly with the coastal setting,
Seaview is further enhanced by energy-efficient features including solar power and rainwater harvesting. More than just a house, Seaview is a harmonious sanctuary – a modern, sustainable retreat that connects people, place, and lifestyle.
| Modules | 4 |
| Living area | 275m2 |
| Deck | 51m2 |
| From | $1,385,000 + GST |
Enter your details to receive the Ecoliv brochure including our complete range, process, and sustainability guide.
