
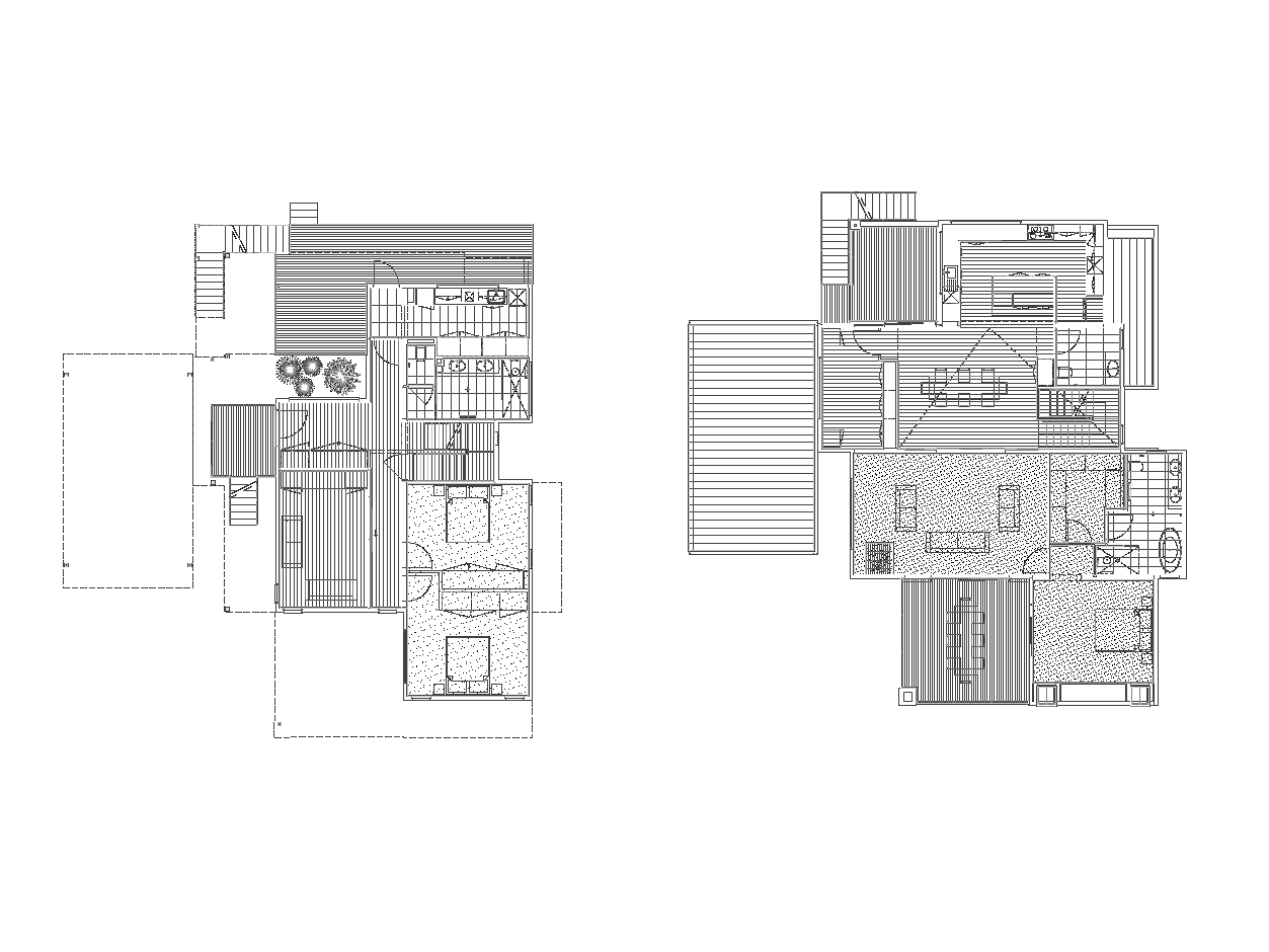
Tucked away on a leafy Montmorency site, this striking double-storey family home invites you to live among the treetops. Designed to preserve existing habitat trees for local sugar gliders, the home balances modern luxury with a deep respect for nature.
Upstairs, the heart of the home opens to an expansive kitchen, living and dining space with a butler’s pantry, flowing out to elevated alfresco areas that capture sweeping views. The master suite shares this treetop outlook, offering a private sanctuary complete with a generous walk-in robe and double ensuite.
Downstairs, three large bedrooms and a versatile kids’ retreat create a dedicated family zone, welcoming everyone home from the street entry. A quiet study ensures the flexibility to work from home with ease.
Dark, moody finishes inside and out give the home a bold architectural presence, while two alfresco spaces offer year-round entertaining options. Designed for family life, connected to nature, and rich with contemporary comfort, Montmorency is a home that truly elevates everyday living.
| Modules | 6 |
| Living area | 241m2 |
| Deck | 62m2 |
| From | $1,455,000 + GST |
Enter your details to receive the Ecoliv brochure including our complete range, process, and sustainability guide.
